0
Skip to Content
Fjell Haus - A Lakeside Retreat
Gallery
Amenities
Rooms
Dillon
Floor Plan
Contact
Book
Open Menu
Close Menu
Fjell Haus - A Lakeside Retreat
Gallery
Amenities
Rooms
Dillon
Floor Plan
Contact
Book
Open Menu
Close Menu
Gallery
Amenities
Rooms
Dillon
Floor Plan
Contact
Book
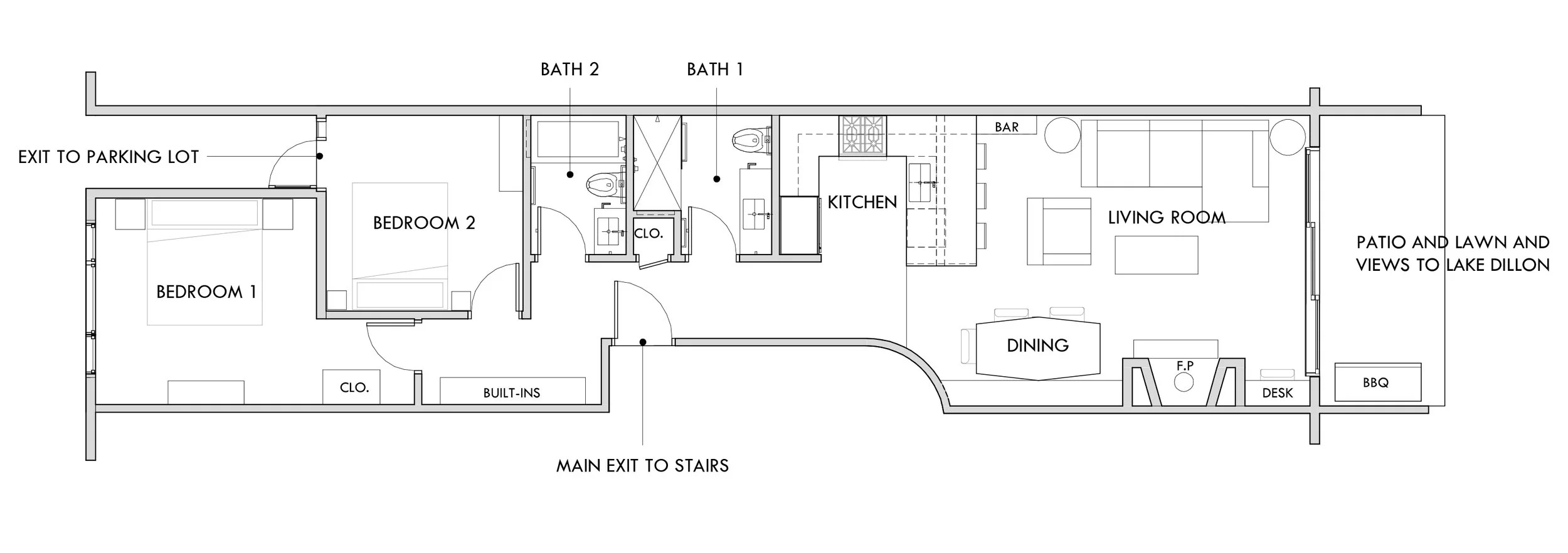
Unit Layout
Unit contains 2 bedrooms, 2 bathrooms, and open plan Kitchen, Living, and Dining